Maison M2 Labenne

IMAGE EXT3 PCMODIF LABENNE

LABENNE INT 1

LABENNE INT 2

20210527 200218

Resized 20210527 200107

M2 RDC vente

M2 R+1 vente

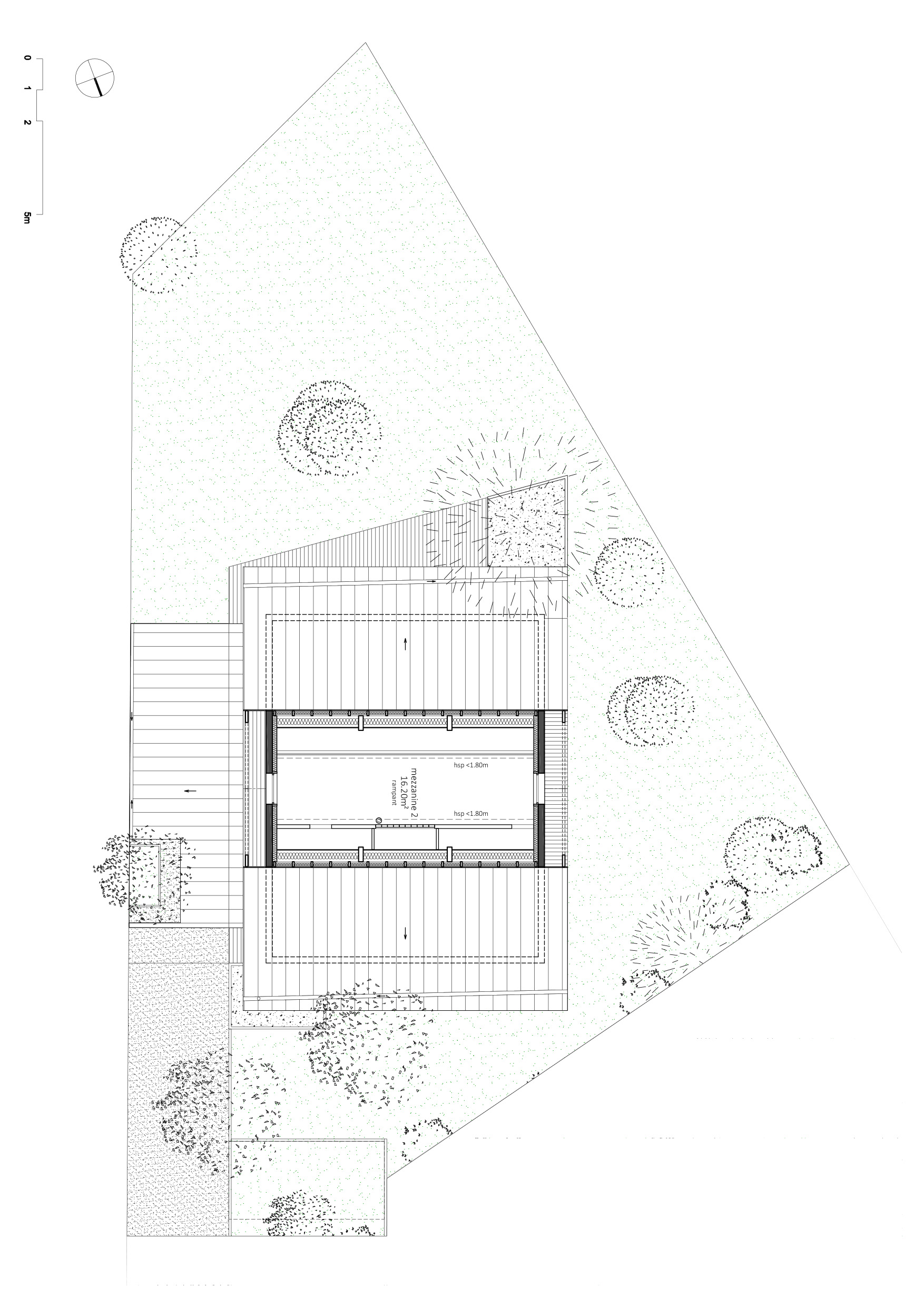
M2 R+2 vente

Maison individuelle M2

LABENNE océan, maison contemporaine de 150 m²
Maison livrée en 2020
Budget travaux : 280 000 €HT
Mission complète